Description
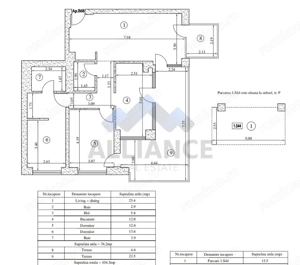
Se inchiriaza apartament spatios cu 3 camere, decomandat, cu terasa spatioasa, situat la etaj intermediar superior, in ansamblul rezidential Silk District. Apartamentul este nemobilat, interiorul este complet amenajat, dispune de utilitati contorizate individual, aer conditionat, tamplarie termoizolanta si usa antiefractie. Ansamblul este prevazut cu sistem control acces, parcare supra si subterana, spatii comerciale, sala fitness, multiple facilitati. In ceea ce priveste chiria, se cauta un chirias pe termen lung, se solicita plata lunara si garantie.









